Terreno
Venda: 160 000,00 €





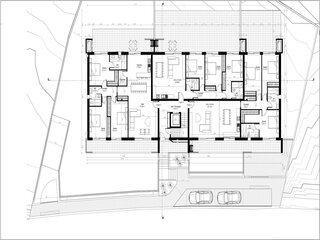
Terreno com Projeto Aprovado para Prédio Habitacional – 6 Frações T3
Excelente oportunidade de investimento!
Terreno com 1.490 m², vendido com projeto aprovado e licença a levantamento, pronto para iniciar construção.
O projeto contempla a edificação de prédio habitacional multifamiliar composto por 6 frações autónomas, tipologia T3, todas com áreas generosas e distribuição funcional, ideal para habitação própria ou mercado de arrendamento.
Cada fração inclui:
• 3 quartos (um deles suite, conforme projeto)
• Sala ampla
• Cozinha
• Instalações sanitárias
• Garagem privativa para 2 viaturas
O lote apresenta excelente área de implantação e permite uma construção moderna, pensada para conforto, funcionalidade e valorização imobiliária.
Imóvel ideal para:
• Promotores imobiliários
• Investidores
• Construção para venda ou arrendamento
Projeto já aprovado, permitindo redução significativa de tempo e custos com licenciamentos.
Para mais informações ou consulta do projeto, entre em contacto.
NOTA : A informação disponibilizada, ainda que precisa, não dispensa a sua confirmação, nem poderá ser considerada vinculativa.
Todos os dados carecem de validação junto da nossa equipa comercial.
VALORFIN – Gabinete de Mediação Imobiliária
|| www.valorfin.pt || www.valorfinimoveis.pt ||
Estado: Não Aplicável
Ano de construção: ---
Área do terreno: 1 490,00 m²
Área bruta: --- m²