Terreno Urbano
Venda: 400 000,00 €





Oportunidade única de investimento no Porto. Terreno urbano com 375 m², situado na Rua de Salazares, numa zona residencial consolidada e com elevada procura, beneficiando de Pedido de Informação Prévia (PIP) aprovado, garantindo segurança e viabilidade imediata para desenvolvimento.
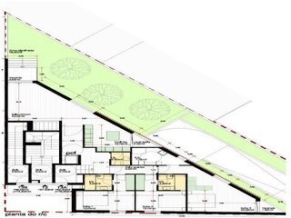
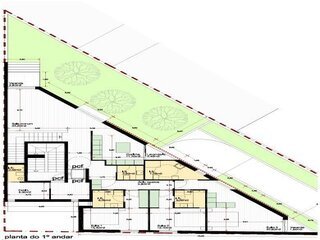
O PIP aprovado permite a construção de um edifício multifamiliar composto por 3 frações, distribuídas por 4 pisos, incluindo cave para aparcamento, respondendo às atuais exigências de conforto, funcionalidade e valorização do ativo.
Principais parâmetros do projeto:
Área do terreno: 375 m²
Área de implantação: 170,80 m²
Área bruta de construção: 738,50 m²
Volumetria: 1.801 m³
Localização estratégica, com excelentes acessos, proximidade a comércio, serviços e transportes públicos, tornando este terreno ideal para promotores ou investidores que procuram um projeto de pequena/média escala com forte potencial de retorno.
Uma solução segura e pronta a avançar, num mercado com procura sólida.
Agende já a sua visita e venha descobrir todo o potencial deste terreno.
Ref. Interna: LM2660
LMDSIMÓVEIS
Fundada em 2009, atuamos no Distrito do Porto com todo o profissionalismo e transparência,
sempre em busca das melhores soluções para Vendedores, Compradores e Colaboradores.
Tratamos de toda a documentação e acompanhamento até escritura sem qualquer custo.
Partilhamos os nossos imóveis.
Junte-se a nós!
Estado: Novo
Ano de construção: ---
Área do terreno: 375,00 m²
Área bruta: 375,00 m²